Antidote

Project Details

Antidote, a wellness center located in Johnson City, TN, is specifically designed for healthcare workers. It offers a dedicated space for these professionals to rejuvenate and revitalize their health, providing an environment where they can recharge and recover from the demands of their daily lives.

The primary function of an Antidote is to relieve, prevent, and counteract something undesirable. Antidotes counteract harmful agents, while wellness centers combat burnout and accumulated stress among healthcare workers. This creates an environment within the facility that serves as an antidote for their well-being. The features within this facility are meticulously designed to serve as a panacea for healthcare professionals to combat burnout and other adverse practices. Establishing areas for rejuvenation and energy restoration, fostering an environment where one can pause, take a breath, and recognize that they are within a space dedicated to their overall well-being. Here, they can shift their focus from constant care giving to their own well-being.

Tools Used

Photoshop, Revit, Enscape

Concept Inspiration

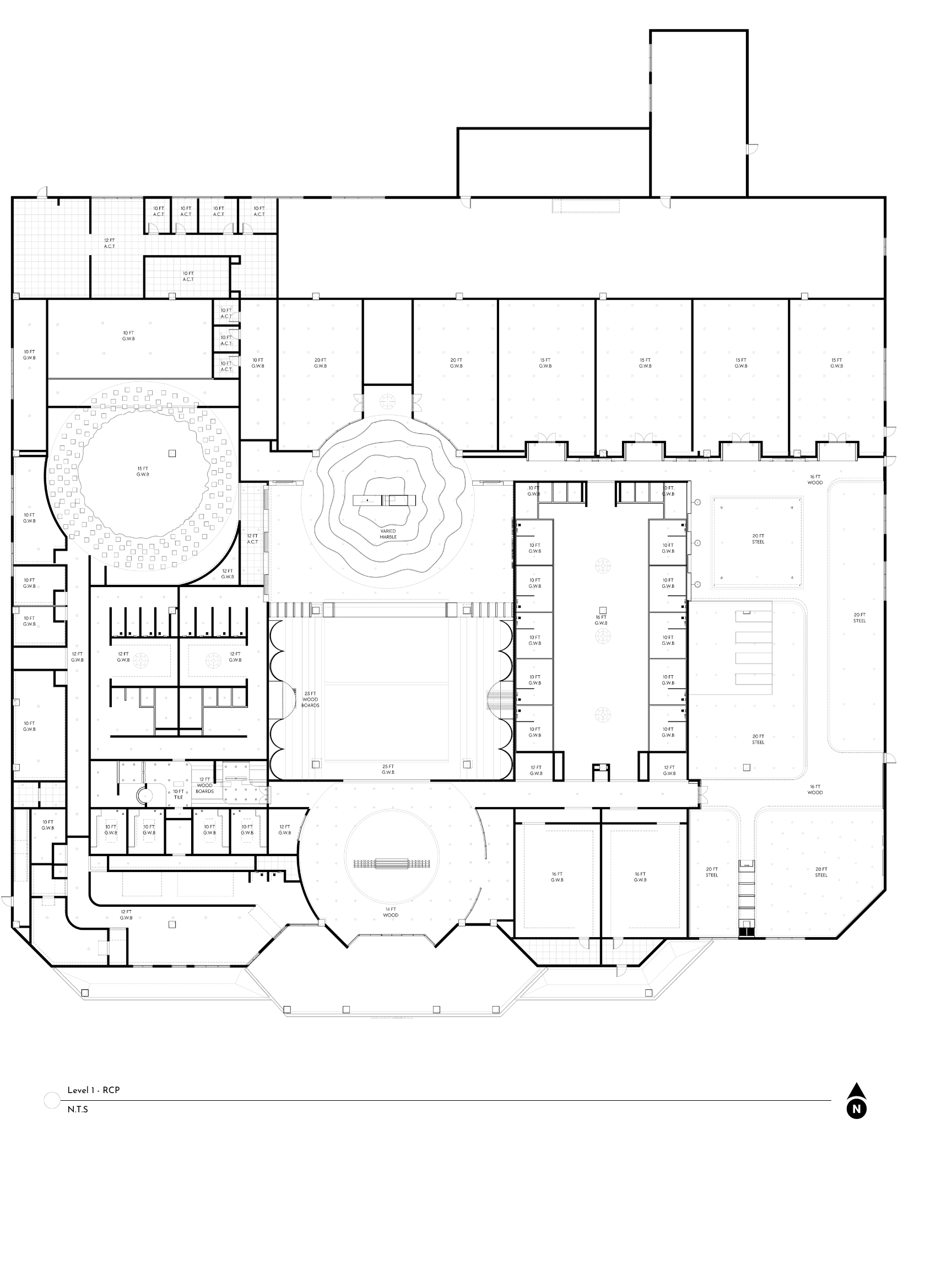
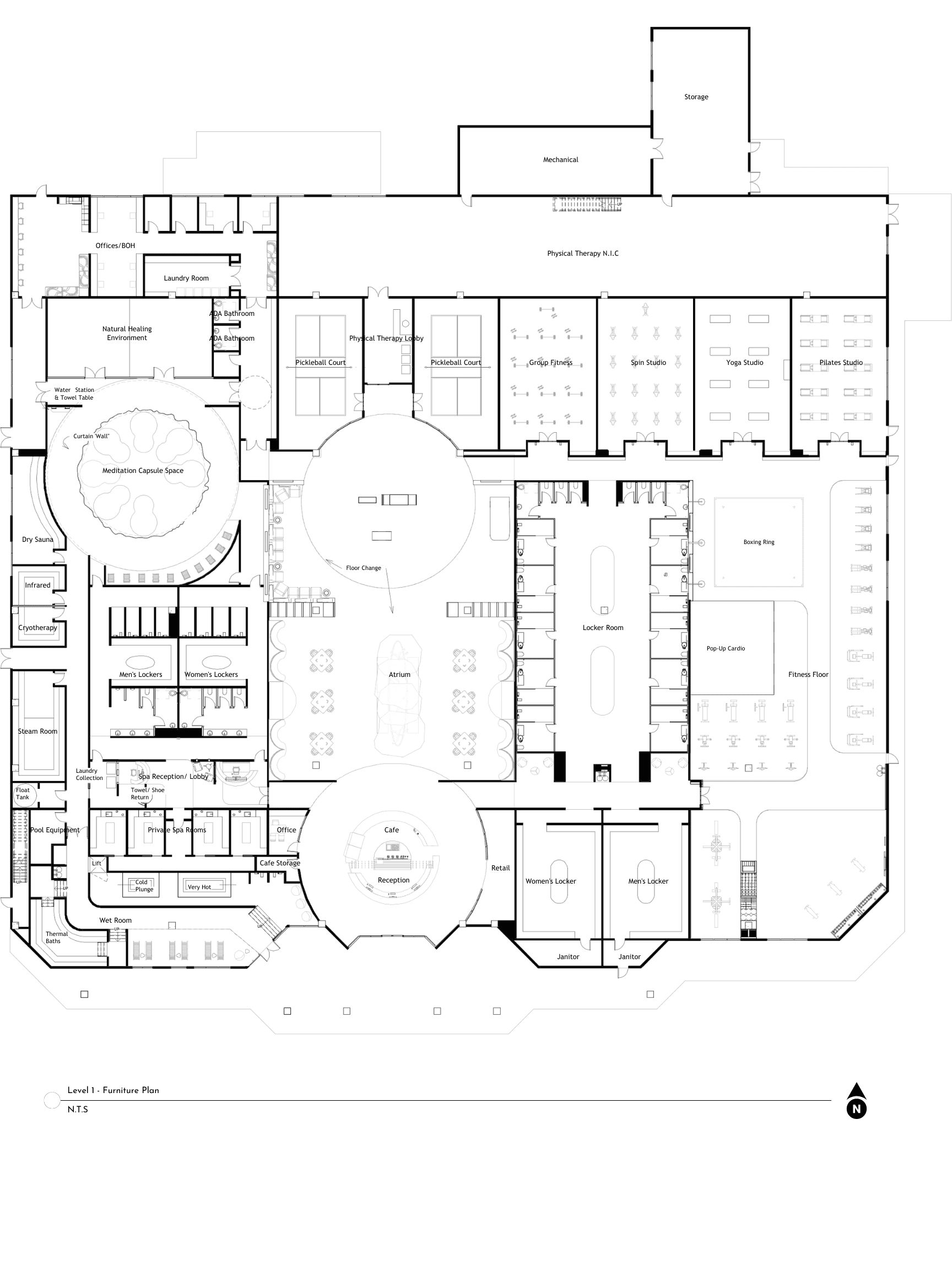
Floor Plan

This 60,000-square-foot building is thoughtfully designed to differentiate between public, private, and semi-private spaces, ensuring distinct areas and energy shifts to signal to the mind and body. Fitness and social amenities are centrally and right aligned, while the spa amenities are

located on the left. This separation allows users to fully immerse themselves in the desired state of mind and energy atmosphere, enhancing their experience and interaction with the space.

User Journey

Key Experiences

Renders

Fitness Floor
Overhead View of Fitness Floor
Boxing Area
Overhead View of Boxing Area
Spa Reception

QR Codes

Process Book QR Code
Video QR Code

Hattie Bradford

(423) 930-3003 | 8hattie.bradford8@gmail.com

© Hattie Bradford, 2024

This site uses cookies

By using this website, you agree to the use of cookies.